Looking for BIM Expertise?

Looking for BIM Expertise?

Transforming Designs into Reality with Expert BIM Solutions for Every Stage of Your Project.

Transforming Designs into Reality with Expert BIM Solutions for Every Stage of Your Project.

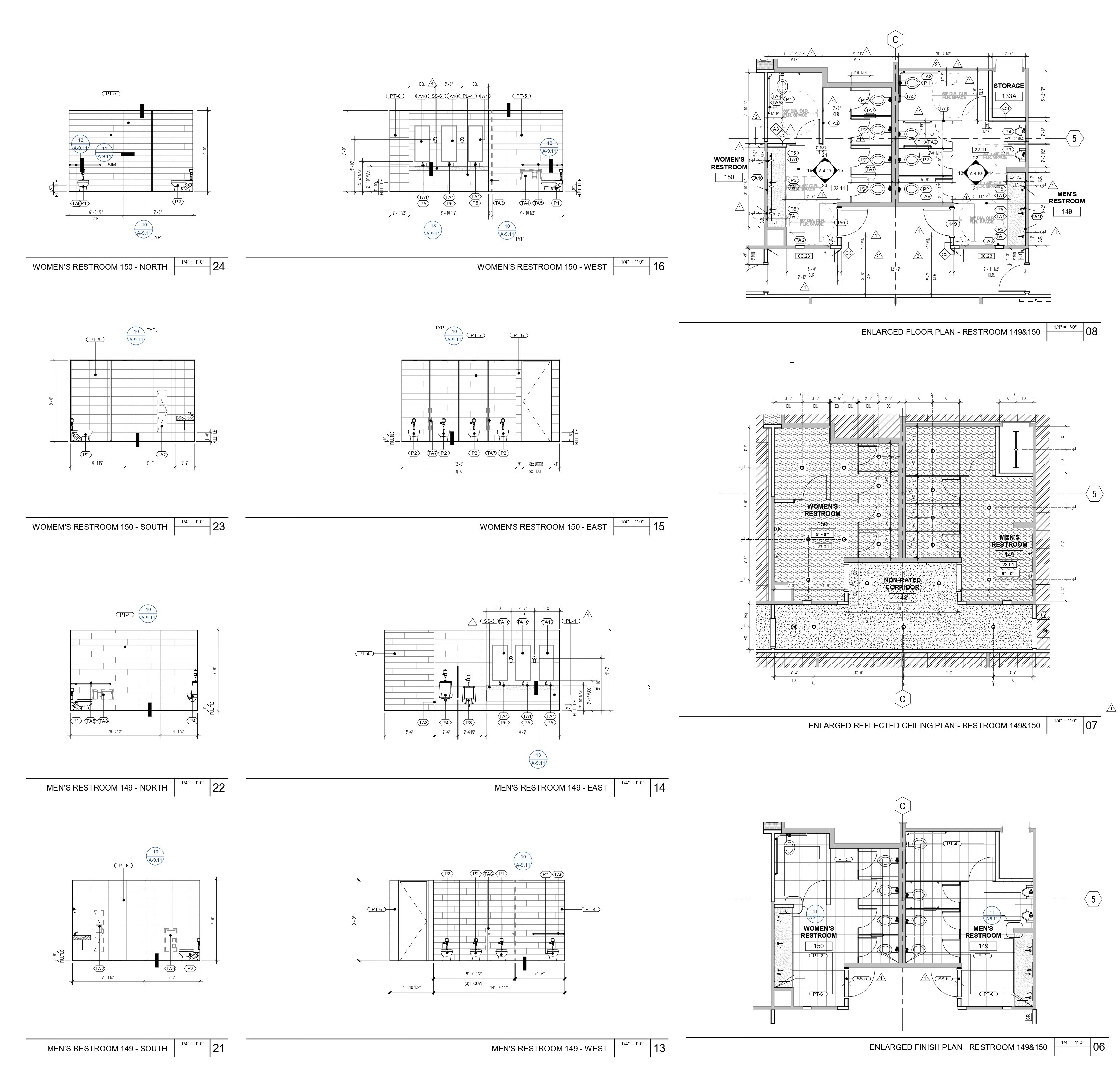
BIM modelling

Our BIM modeling services offer comprehensive solutions to streamline your project workflow. From CAD to BIM and Sketch to BIM, we ensure smooth transitions for accurate digital representations. Our expertise includes modeling according to LOD standards, as-built modeling, and converting point clouds to BIM for precise construction documentation. Additionally, we specialize in custom family creation to enhance your BIM library, making it easier to manage and execute your designs efficiently. Let us help you optimize your project from start to finish with cutting-edge BIM technology.

Clash detection

Our clash detection services ensure a seamless construction process by identifying and resolving design conflicts early. Using advanced BIM tools, we perform thorough clash detection across architectural, structural, and MEP systems to pinpoint potential issues before construction begins. This proactive approach minimizes delays, reduces costs, and improves collaboration among teams, ensuring a smoother project execution. Let us help you avoid costly errors and streamline your construction process with our expert clash detection services.

Point Cloud to BIM Conversion

Discover our premium Point Cloud to BIM services, designed to convert complex 3D scan data into accurate, detailed Building Information Models. We pride ourselves on delivering top-quality results with a quick turnaround time, ensuring project deadlines are met efficiently. Our competitive pricing makes us the ideal partner for architects, engineers, and construction professionals seeking reliable and cost-effective BIM solutions. Trust us to bring precision and excellence to your renovation, construction, or facility management projects.

3D Visualisation

Experience our premium 3D Visualization Services, offering highly detailed and realistic visual representations tailored to your project needs. We deliver exceptional quality with fast turnaround times, helping you visualize concepts, designs, and ideas with clarity and precision. Our competitive pricing makes us the preferred choice for architects, developers, and interior designers seeking professional and cost-effective 3D visualization solutions. Elevate your presentations and communicate your vision with stunning visuals crafted by our expert team.



3D Visualisation

Experience our premium 3D Visualization Services, offering highly detailed and realistic visual representations tailored to your project needs. We deliver exceptional quality with fast turnaround times, helping you visualize concepts, designs, and ideas with clarity and precision. Our competitive pricing makes us the preferred choice for architects, developers, and interior designers seeking professional and cost-effective 3D visualization solutions. Elevate your presentations and communicate your vision with stunning visuals crafted by our expert team.



Quantification

Facade Detailing

Documentation

Facade Detailing

Documentation

Create a free website with Framer, the website builder loved by startups, designers and agencies.